DOM Z114D
DANE TECHNICZNE
DOM PARTEROWY Z PODDASZEM
POWIERZCHNIA UŻYTKOWA / NETTO
POWIERZCHNIA GARAŻU
POWIERZCHNIA ZABUDOWY
KUBATURA
Powierzchnia użytkowa liczona zgodnie z rozporządzeniem ministra z dnia 25 kwietnia 2012
WYSOKOŚĆ
KĄT NACHYLENIA DACHU
POWIERZCHNIA DACHU
LICZBA POKOI
102,4 / 146,8 m2
20,4 m2
109,5 m3
416,23 m3
7,86 m
38 st.
185 m2
4
DOM Z114D
PARTER 62,3 / 88,1 m2
SIEŃ
KUCHNIA
SALON + JADALNIA
WC
POM. GOSPODARCZE
GARAŻ
SPIŻARKA
4,4 m2
10,1 m2
43,0 m2
2,9 m2
5,4 m2
20,4 m2
2,0 m2
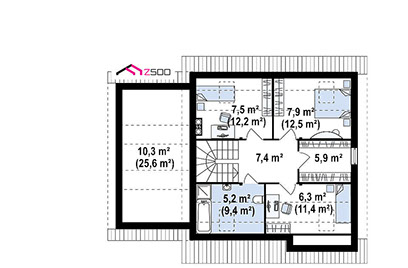
DOM Z114D
PODDASZE 40,1 / 58,7 m2
HOL
POKÓJ
POKÓJ
GARDEROBA
POKÓJ
ŁAZIENKA
STRYCH (opcja)
7,4 m2
7,5 m2
7,9 m2
5,9 m2
6,3 m2
5,2 m2
10,3 m2
DOM Z114D
MINIMALNE WYMIARY DZIAŁKI
SZEROKOŚĆ
DŁUGOŚĆ
WYMIARY ELEWACJI FRONTOWEJ
20,38 m
17,48 m
13,22 m
WYJAŚNIENIE POJĘĆ
Powierzchnia użytkowa
Powierzchnia wszystkich pomieszczeń z włączeniem pomieszczenia technicznego, garażu, pomieszczenia gospodarczego, strychu. Przy obmiarach nie uwzględnia się tyków i okładzin ściennych.
Powierzchnia netto
Jest to powierzchnia wszystkich pomieszczeń budynku mierzona w poziomie podłogi z uwzględnieniem tynków i okładzin ścian. Nie pomniejsza się powierzchni pomieszczeń o zmiennej wysokości – np. na poddaszu. Prościej mówiąc to tak jakby rozłożyć we wszystkich pomieszczeniach wykładzinę.
Powierzchnia zabudowy
Jest to powierzchnia obrysu ścian zewnętrznych budynku (parteru). Do powierzchni zabudowy nie wlicza się: podziemnych części budynku, pochylni samochodowych, schodów zewnętrznych, ganków, daszków nad wejściem, galerii oraz wszystkich nadwieszeń kondygnacji. Uwzględnia się np. ogrody zimowe lub inne elementy przybudowane.
Kubatura:
Objętość pomieszczeń, czyli powierzchnia pomieszczeń pomnożona przez wysokość danej kondygnacji. Do obliczenia kubatury przyjęliśmy wysokość liczoną od podłogi do spodu stropu lub do spodu stropodachu.
Liczna pokoiLiczba pokoi z wyłączeniem pomieszczeń gospodarczych i technicznych.
Powierzchnia dachu
Łączna powierzchnia dachu z wyłączeniem okien dachowych.
DOMY Z PODDASZEM
W TECHNOLOGII SZKIELETOWEJ
WARSKOP
Przedsiębiorstwo Budowlane
Janusz Stokłosa
02-777 Warszawa
ul. Strzeleckiego 2/18
www.warskop.pl
(22) 643 38 14
501 827 318
506 585 855
NIP: 5210321397
REGON: 012038594
BUDUJEMY
DOMY KANADYJSKIE
W TECHNOLOGII SZKIELETOWEJ
WARSKOP.PL