DOM Z136D
DANE TECHNICZNE
DOM PARTEROWY
POWIERZCHNIA UŻYTKOWA / NETTO
POWIERZCHNIA GARAŻU
POWIERZCHNIA ZABUDOWY
KUBATURA
Powierzchnia użytkowa liczona zgodnie z rozporządzeniem ministra z dnia 25 kwietnia 2012
WYSOKOŚĆ
KĄT NACHYLENIA DACHU
POWIERZCHNIA DACHU
LICZBA POKOI
79,2 m2
-
95,1 m2
209,78 m3
6,06 m
25 st.
155,45 m2
3
Z136D
79 m2
DOM Z136D
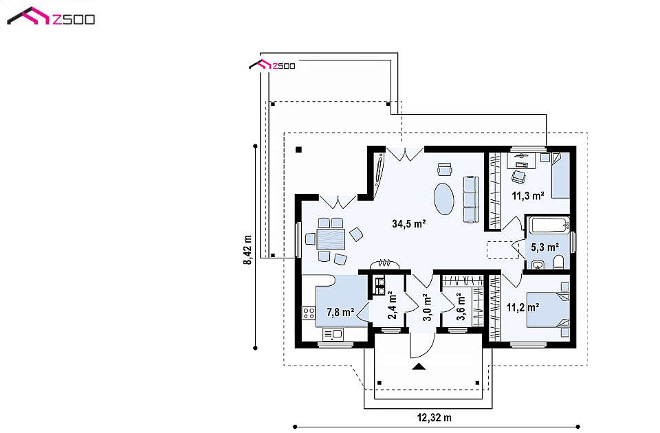
PARTER 79,2 m2
SIEŃ
KUCHNIA
SALON + JADALNIA
POKÓJ
WC
POKÓJ
GARDEROBA
POM. GOSPODARCZE
3,0 m2
7,8 m2
34,5 m2
11,3 m2
5,3 m2
11,2 m2
3,6 m2
2,4 m2
Z136D
79 m2
DOM Z136D
PODDASZE OPCJONALNIE
PODDASZE OPCJONALNIE - OZNACZA TO, ŻE W DANYM
PROJEKCIE ISTNIEJE MOŻLIWOŚĆ ZAADAPTOWANIA KONDYGNACJI NAD STROPEM NA POWIERZCHNIĘ MIESZKALNĄ, UŻYTKOWĄ LUB STRYCH W ZALEŻNOŚCI OD OSTATECZNEGO PRZEZNACZENIA PRZESTRZENI POD DACHEM.
ZAADAPTOWANIE KONDYGNACJI WYMAGA KAŻDORAZOWO NANIESIENIA NA PROJEKT NIEZBĘDNYCH MODYFIKACJI: KONSTRUKCYJNYCH, ARCHITEKTONICZNYCH ORAZ INSTALACYJNYCH, KTÓRE NALEŻY PRZEPROWADZIĆ NA ETAPIE ADAPTACJI PROJEKTU DO DZIAŁKI PRZEZ OSOBY UPRAWNIONE.
Z136D
79 m2
DOM Z136D
MINIMALNE WYMIARY DZIAŁKI
SZEROKOŚĆ
DŁUGOŚĆ
WYMIARY ELEWACJI FRONTOWEJ
18 m
15,5 m
12 m
WYJAŚNIENIE POJĘĆ
Powierzchnia użytkowa
Powierzchnia wszystkich pomieszczeń z włączeniem pomieszczenia technicznego, garażu, pomieszczenia gospodarczego, strychu. Przy obmiarach nie uwzględnia się tyków i okładzin ściennych.
Powierzchnia netto
Jest to powierzchnia wszystkich pomieszczeń budynku mierzona w poziomie podłogi z uwzględnieniem tynków i okładzin ścian. Nie pomniejsza się powierzchni pomieszczeń o zmiennej wysokości – np. na poddaszu. Prościej mówiąc to tak jakby rozłożyć we wszystkich pomieszczeniach wykładzinę.
Powierzchnia zabudowy
Jest to powierzchnia obrysu ścian zewnętrznych budynku (parteru). Do powierzchni zabudowy nie wlicza się: podziemnych części budynku, pochylni samochodowych, schodów zewnętrznych, ganków, daszków nad wejściem, galerii oraz wszystkich nadwieszeń kondygnacji. Uwzględnia się np. ogrody zimowe lub inne elementy przybudowane.
Kubatura:
Objętość pomieszczeń, czyli powierzchnia pomieszczeń pomnożona przez wysokość danej kondygnacji. Do obliczenia kubatury przyjęliśmy wysokość liczoną od podłogi do spodu stropu lub do spodu stropodachu.
Liczna pokoiLiczba pokoi z wyłączeniem pomieszczeń gospodarczych i technicznych.
Powierzchnia dachu
Łączna powierzchnia dachu z wyłączeniem okien dachowych.
501 827 318
506 585 855
(22) 643 38 14
www.warskop.pl
02-777 Warszawa
ul. Strzeleckiego 2/18
Przedsiębiorstwo Budowlane
Janusz Stokłosa
NIP: 5210321397
REGON: 012038594
strony www robertkurkowski.com 888 999 620