DOM Z216
DANE TECHNICZNE
DOM PARTEROWY Z PODDASZEM
POWIERZCHNIA UŻYTKOWA / NETTO
POWIERZCHNIA GARAŻU
POWIERZCHNIA ZABUDOWY
KUBATURA
Powierzchnia użytkowa liczona zgodnie z rozporządzeniem ministra z dnia 25 kwietnia 2012
WYSOKOŚĆ
KĄT NACHYLENIA DACHU
POWIERZCHNIA DACHU
LICZBA POKOI
85,1 / 99,7 m2
-
68,2 m2
250,45 m3
7,38 m
40 st.
112,47 m2
5
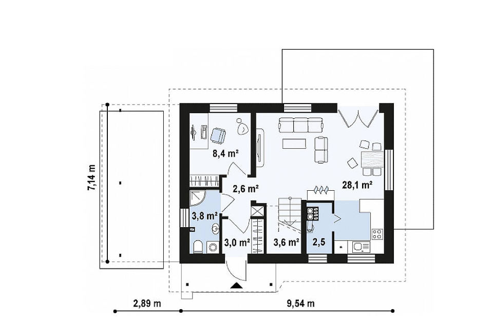
DOM Z216
PARTER 51,9 m2
SIEŃ
HOL
ŁAZIENKA
GABINET
SALON + KUCHNIA
POMIESZCZENIE GOSPODARCZE
HOL + SCHODY
3,0 m2
2,6 m2
3,8 m2
8,4 m2
28,1 m2
2,5 m2
3,6 m2
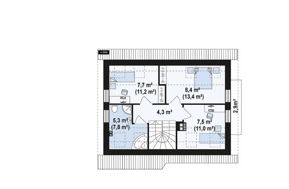
DOM Z216
PODDASZE 33,2 / 47,8 m2
HOL
POKÓJ
POKÓJ
POKÓJ
ŁAZIENKA
BALKON
4,3 m2
7,7 m2
8,4 m2
7,5 m2
5,3 m2
2,9 m2
DOM Z216
MINIMALNE WYMIARY DZIAŁKI
SZEROKOŚĆ
DŁUGOŚĆ
WYMIARY ELEWACJI FRONTOWEJ
16,7 m
14,9 m
8,79 m
WYJAŚNIENIE POJĘĆ
Powierzchnia użytkowa
Powierzchnia wszystkich pomieszczeń z włączeniem pomieszczenia technicznego, garażu, pomieszczenia gospodarczego, strychu. Przy obmiarach nie uwzględnia się tyków i okładzin ściennych.
Powierzchnia netto
Jest to powierzchnia wszystkich pomieszczeń budynku mierzona w poziomie podłogi z uwzględnieniem tynków i okładzin ścian. Nie pomniejsza się powierzchni pomieszczeń o zmiennej wysokości – np. na poddaszu. Prościej mówiąc to tak jakby rozłożyć we wszystkich pomieszczeniach wykładzinę.
Powierzchnia zabudowy
Jest to powierzchnia obrysu ścian zewnętrznych budynku (parteru). Do powierzchni zabudowy nie wlicza się: podziemnych części budynku, pochylni samochodowych, schodów zewnętrznych, ganków, daszków nad wejściem, galerii oraz wszystkich nadwieszeń kondygnacji. Uwzględnia się np. ogrody zimowe lub inne elementy przybudowane.
Kubatura:
Objętość pomieszczeń, czyli powierzchnia pomieszczeń pomnożona przez wysokość danej kondygnacji. Do obliczenia kubatury przyjęliśmy wysokość liczoną od podłogi do spodu stropu lub do spodu stropodachu.
Liczna pokoiLiczba pokoi z wyłączeniem pomieszczeń gospodarczych i technicznych.
Powierzchnia dachu
Łączna powierzchnia dachu z wyłączeniem okien dachowych.
501 827 318
506 585 855
(22) 643 38 14
www.warskop.pl
02-777 Warszawa
ul. Strzeleckiego 2/18
Przedsiębiorstwo Budowlane
Janusz Stokłosa
NIP: 5210321397
REGON: 012038594
strony www robertkurkowski.com 888 999 620